Spacious Detached Villa with Versatile Living, Conservatory Dining and Garage. A flexible family home in a highly sought-after residential setting. Homes offering this level of space, flexibility and family-focused layout in such a well-connected location seldom become available.
This well-proportioned detached villa delivers adaptable living across two levels, combining generous reception space, a versatile layout and excellent outdoor potential, ideal for modern family life. With the added benefit of a garage, private gardens and no onward chain, this is a home designed for both immediate comfort and long-term practicality.
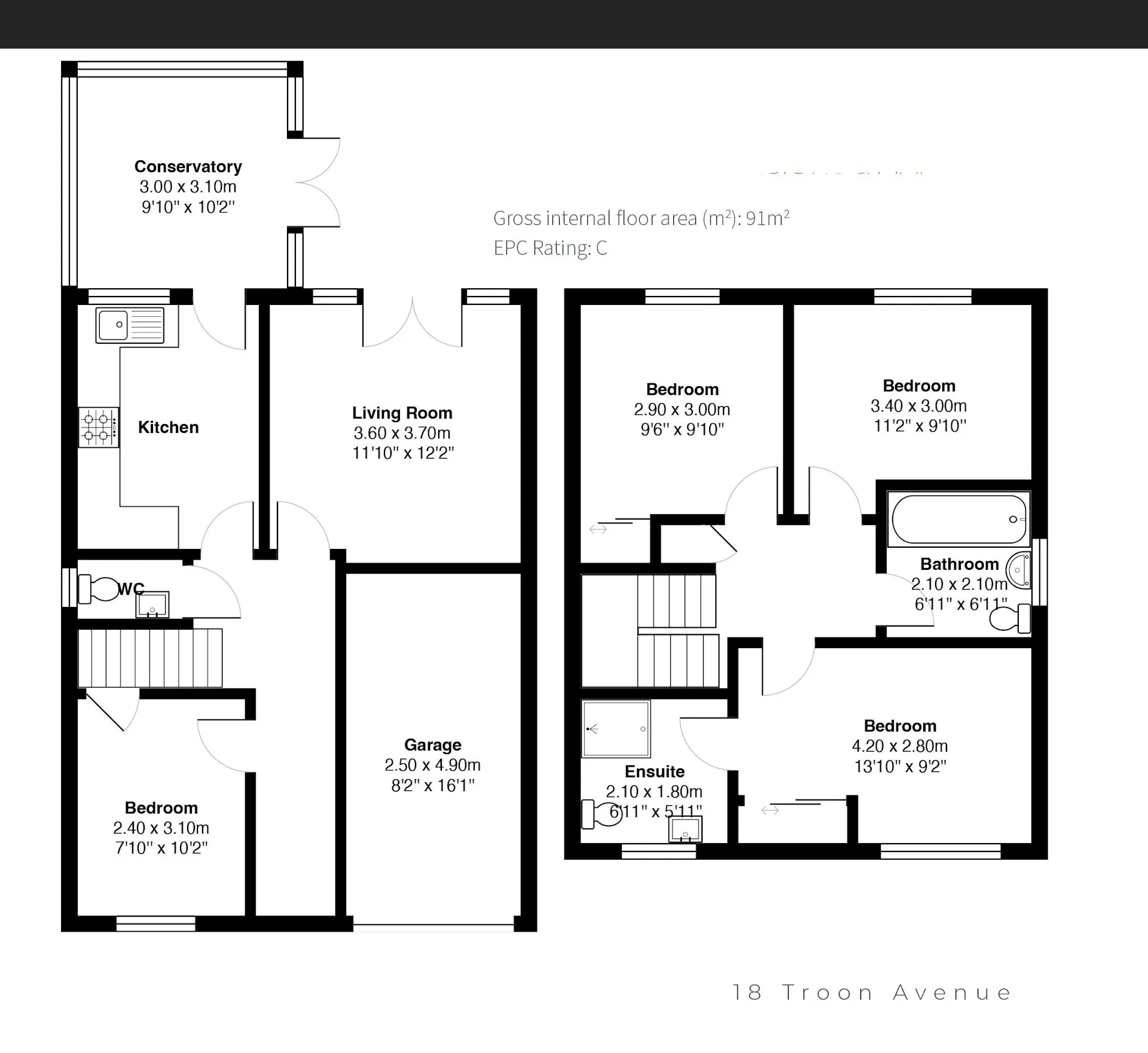
AT A GLANCE
Detached villa in a popular residential location
Flexible layout with up to four bedrooms
Spacious lounge plus separate dining room/bedroom 4
Modern kitchen leading to conservatory dining space
Guest cloakroom (WC) on ground floor
Three upper bedrooms, including principal en-suite
Family bathroom
Private front and rear gardens
Garage and driveway
THE LIFESTYLE, SPACE THAT ADAPTS TO YOU
Designed with flexibility in mind, this home allows buyers to tailor the space to suit their needs.
The main lounge offers a comfortable and well-proportioned setting for everyday living, while the additional reception room on the ground floor can function equally well as a formal dining room, fourth bedroom, home office or playroom, a key feature for modern buyers seeking adaptable space.
The kitchen connects seamlessly to a conservatory, creating a bright and inviting dining area overlooking the garden, ideal for both relaxed family meals and entertaining.
GROUND FLOOR, PRACTICAL AND SOCIABLE LIVING
Spacious lounge with excellent natural light
Versatile second reception room/bedroom 4
Modern fitted kitchen
Conservatory providing a dedicated dining space
Guest cloakroom with WC and wash hand basin
This layout supports both day-to-day family life and hosting, with clear separation between living and dining zones.
FIRST FLOOR, COMFORTABLE FAMILY ACCOMMODATION
The upper level provides three well-proportioned bedrooms. The principal bedroom benefits from its own en-suite shower room, offering privacy and convenience. The remaining bedrooms are served by a family bathroom, making the layout ideal for growing families or visiting guests.
OUTDOOR SPACE, ROOM TO ENJOY AND POTENTIAL TO ENHANCE
Externally, the property offers a balanced outdoor setup. To the front, a garden enhances kerb appeal, while the rear garden provides a private space for relaxing, entertaining or family use. The inclusion of a garage and driveway adds valuable storage and secure parking, a key requirement for many buyers in this area.
A SMART MOVE FOR GROWING FAMILIES
This is a home that delivers where it matters most, space, flexibility, location and future potential. With the ability to adapt rooms to suit changing needs, it appeals to families, professionals working from home, and buyers seeking long-term versatility. Properties of this type, in this location, with this level of flexibility are consistently in demand.
Electricity Supply: SP Energy Networks
Water Supply: Scottish Water
Sewerage: Scottish Water
Broadband / Mobile Coverage: Full 4G coverage, limited 3G and 5G.
The description of properties on the website do not form part of any offer and all statements and photographs are for illustrative purposes only and not guaranteed. Buyers must satisfy themselves on the accuracy and authenticity of each property listed.